
ローコストデザイン注文住宅 税抜998万円〜
住宅ローン相談も好評実施中|熊本の住宅会社
ママの「嬉しい」が詰まった家|ままはぴ

商品ラインナップ
セイカホームはお客様の様々なマイホームの夢を実現するため、ローコスト注文住宅「ハピネス」・「スマイル」、平屋の家「縁〜EN〜」、ワンランク上のデザイン住宅「ハーモニー」・「結〜MUSUBI〜」など多彩な商品をご用意しております。熊本・福岡・久留米で住宅の新築をお考えのお客様は是非ご相談ください。

新プラン年間
5棟限定
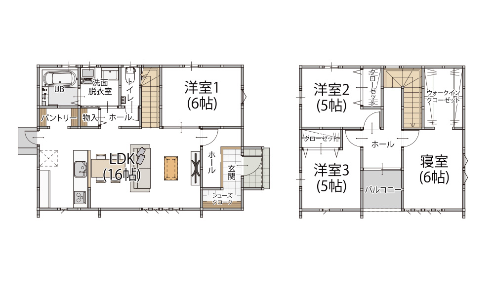
ままはぴ南プラン


新プラン年間
5棟限定
ままはぴ東プラン


新プラン年間
5棟限定
ままはぴ南プラン


新プラン年間
5棟限定
ままはぴ北プラン


PLAN01
ままはぴ東入プラン


PLAN02
ままはぴ西入プラン


PLAN03
ままはぴ南入プラン


PLAN04
ままはぴ北入プラン


プランはご提案であり、
商品の坪数によって間取りは自由設計が可能です。
「ままはぴ」は生活動線や家事動線を使いやすく工夫し、毎日家事で大変なママに優しい住まいです。他にもパントリーや豊富な収納など、注文住宅ならではの嬉しいことがいっぱい。セイカホームは熊本・福岡・久留米のママを応援するハウスメーカーです!

窓は断熱・遮熱にとって大事なポイント。セイカホームの注文住宅はLow-E複層ガラスを標準採用しておりますので、高い断熱性・遮熱性が期待できます。

豊富なデザインと豊富なカラーバリエーションの高性能玄関ドア。気密性・断熱性・遮音性に優れた玄関ドア。ICチップを内蔵したカード/シールをハンドルに近づけるだけで鍵を開閉。お子様からお年寄りまで使いやすいスマートドアです。

ウッド調/タイル調/ストーン調など、お客様のお好みやご希望の住まいを彩る外壁材を豊富にご用意しております。汚れに強いマイクロガード、安心の外壁10年製品保証つきです。

多彩なデザイン、多彩なカラーから選べるドア・建具。住まいのイメージやライフスタイルに合わせてお選びください。

落ち着いた色合いのフロア、明るいイメージのナチュラルなフロア、清潔感のあるホワイトなど、お好きなものをお選びいただけます。

セイカホームの階段材は、フロアの色に合わせて同じ色合いを選んだり、アクセントとして違う色をセレクトしたりも可能です。



泡のクッションで汚れを受け止めるPanasonicの「アラウーノS141」。水垢をはじくスゴピカ素材、激落ちバブル、スパイラル水流で汚れがつきにくく、お手入れしやすい便器です。好きない水で一気に流すターントラップ方式で節水効果も抜群です。
